Уличные навесы для спортивных тренажеров - это надежное и практичное решение для обустройства спортивных площадок на улице. Они представляют собой металлические конструкции, которые могут быть установлены над спортивными тренажерами для защиты от погодных условий и обеспечения комфортных условий для занятий спортом на открытом воздухе.
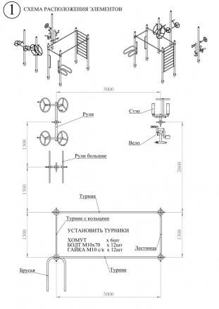
Комплекс состоит из следующих элементов:
- шведская стенка;
- 3 разноуровневых турника;
- степпер с использованием помощи рук;
- велосипед для рук и ног;
- рули;
- поручни вертикальные;
- брусья.
Наши уличные навесы изготовлены из высококачественных материалов, что гарантирует их долговечность и устойчивость к воздействию внешних факторов. Они имеют прочную конструкцию и отличаются надежностью и безопасностью.
Уличные навесы для спортивных тренажеров могут быть установлены на любой площадке, будь то сквер, парк или спортивная площадка. Они защищают от дождя, солнца и снега, тем самым увеличивая срок эксплуатации спортивных тренажеров и обеспечивая комфортные условия для занятий спортом на улице.
Артикул
УТИ002
Гарантия
12 месяцев
Длина
3 м
Ширина
4 м
Высота
2,5 м
Максимальный вес пользователя
150
Тип окраски
Полимерно-порошковое покрытие
Стоимость установки рассчитает менеджерНажимая на кнопку "Задать вопрос" Вы даете согласие на обработку персональных данных
В нашем ассортименте представлен хороший выбор тренажеров и игрового оборудования для улицы. Наш интернет-магазин сотрудничает только с надежными производителями, высоко зарекомендовавшими себя на рынке. Поэтому вы можете не сомневаться в безупречном качестве товаров, изображенных на фото нашего каталога.
Сейчас у нас проходит грандиозная акция – и на многие хиты продаж снижена цена. Например, на навес с тренажерами ути002, купить изделие с артикулом УТИ002 можно всего за 330 000 руб. рублей. В карточке товара представлено его подробное описание, чтобы вам было проще определиться с выбором.
Мы выполняем не только реализацию и доставку, но и установку уличного оборудования.
Чтобы узнать, сколько стоит установка, сообщите нам следующие условия:
- Место расположения и специфику объекта
- Характеристики покрытия, на котором необходимо выполнить монтаж
В любом случае, установка уличного оборудования бригадой наших мастеров обойдется вам очень недорого. На все работы предоставляется гарантия качества.





















