| № | Наименование | Описание | Кол-во | Единица измерения |
1 | Башня | выполнены из четырёх клеёных брусьев 100х100 мм высота 2500 мм, брус окрашен в коричневый цвет. Пол из ламинированной фанеры, с антискользящим покрытием 1000х1000 мм, толщиной 18 мм кромки фанеры тщательно шлифованы. Над башней имеется двускатная крыша, по аркам из влагостойкой фанеры, габарит арок 1000х575х18 мм, скаты фанера влагостойкая, толщиной 12 мм, габарит 1000х580х12 мм. Ограждение башни двух видов - из влагостойкой фанеры и ограждающая перекладина из стальной трубы. Ограждение из влагостойкой фанеры толщиной 18 мм, крепятся к опорному брусу при помощи пластиковых уголков. Ограждение окрашено при помощи UF-принтера. Принт - в стиле Мультяшный город.Отметка пола башни от планировочной отм площадки 1200 мм | комплект | |
2 | Горка | Скат горки шириной 530 мм, выполнен из нержавеющей стали t=1,5 мм, - цельного листа, борта выполнены из влагостойкой фанеры толщиной 24 мм, кромки фанеры тщательно шлифованы, борта окрашены при помощи УФ печати, принт - в стиле «Мультяшный город»- основной цвет принта серый с вкраплениями оранжевых кирпичей. Соединительный элемент - оранжевый. Ограждения стартового участка горки, выполнены из влагостойкой фанеры толщиной 18 мм, фанера окрашена - оранжевый принт, имитирует кирпичную стену с арочным окном. Опорный каркас горки выполнен из профиля 40х25 и труб диаметром 32 мм (металл имеет плавные радиусы и тщательную обработку швов, покрыт порошковой краской) Размер горки в плане 530х2270х1200 (h) | комплект | |
3 | Скалолаз | Скалолаз состоит из щита из влагостойкой фанеры, толщиной 18 мм, размер 1000х800 мм, с прорезями. Окрашен с нанесением принта в стиле Город, принт - зеленая стена с кирпичными вставками | шт | |
4 | Лестница | Лестница состоит из бортов, выполненных из фанеры влагостойкой толщиной 24 мм, и пяти ступенек, выполненных из ламинированной антискользящей фанеры, толщиной 18 мм, ширина ступней 780 мм. Пространство между ступенями закрыто экранами из влагостойкой фанеры толщиной 18 мм, между ступенью и экраном имеется щель для слива дождевой воды. Ступени и экраны вставляются в пазы бортов лестницы. Борта стягиваются шпильками М10. Лестница поставляется в собранном виде | шт | |
5 | Перила лестницы | выполнены влагостойкой фанеры толщиной 24 мм, окрашены. В комплекте 2 шт. перил | комплект |
- Артикул
ДИК 2.01.1.01-11
- Артикул (старый)
ДИК 101.11
- Габариты (ШхДхВ)
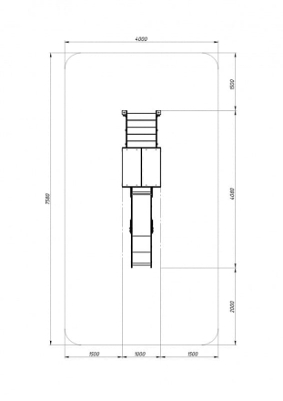
4080x1000x3000
- Зона безопасности, мм
7580х4000
- Высота падения, мм
1200
- Вес, кг
214,60
- Скат горки
H=1200 (металлический скат)
- Возрастные ограничения
от 5 до 12 лет, весом не более 70 кг
- Официальная гарантия
Гарантийный срок на изделия от 12 месяцев
- Сертификат
RU №0208095 №: RU C-RU.AE83.B.00092/20 Сертификат соответствия (Детские игровые комплексы)
Стоимость установки рассчитает менеджер






